Penywain Road, Roath, Cardiff.

£177,500

Sold STC
Beds

2

bedrooms

Bathrooms

1

bathroom

Receptions

1

reception

A well proportioned and bright first floor flat, forming the upper part of a traditional bay fronted converted property, conveniently located just a short walk to the amenities around Roath Park, the comprehensive shops at Albany and Wellfield Road, and within an easy commute to the City Centre.

Communal entrance with Intercom, first floor hallway, spacious bay fronted lounge, kitchen, 2 bedrooms, modern family bathroom. uPVC double glazing, gas central heating.

Ideal purchase for a first time buyer, no chain.
EPC Rating: D

Entrance Porch

Decorative arched surround.

Communal Entrance Hall

Approached by a panelled front door with Intercom and self-opening door to apartment. Independent ground floor entrance door with single flight staircase to the first floor.

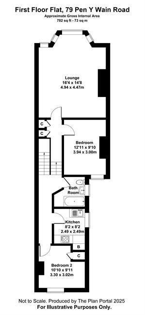
On the First Floor

Deep central landing/hallway with built out twin floor to ceiling cupboards, access to loft.

Lounge 16'4" (4.98m) x 14'8" (4.47m) into bay

Overlooking the entrance approach, panelled radiator, oak panelled door with glass inserts to hall.

Kitchen 8'2" (2.49m) x 8'2" (2.49m)

Inset sink and drainer with mixer tap, base cupboards, round nosed work surface with cupboard and drawers below, matching eye level twin cupboards, plumbed for automatic washing machine, slot-in electric cooker, original timber casement window to side with Xpelair fan, wall mounted Worcester gas central heating boiler, panelled radiator.

Bedroom 1 12'11" (3.94m) x 9'10" (3m)

Aspect to rear, double glazed window, panelled radiator, panelled oak finish door.

Bedroom 2 10'10" (3.3m) x 9'11" (3.02m)

Double glazed window with aspect to rear, built out store cupboard, panelled radiator, oak finished door to hall.

Bathroom

Low level WC, pedestal wash hand basin, panelled bath with Mira shower, glazed shower screen panel, ceramic wall tiling to wet areas, panelled radiator. Timber casement window to side.

Directions

Travelling along Lake Road West with the lake on your left, continue to the main Fairoak Road roundabout. Thereon, take the third exit at the roundabout into Shirley Road and at the next roundabout turn left into Penywain Road, whereby the property will be found a short distance on the right hand side.

Viewers Material Information:

1)

Prospective viewers should view the Cardiff Adopted Local Development Plan 2006-2026 (LDP) and employ their own Professionals to make enquiries with Cardiff County Council Planning Department (www.cardiff.gov.uk) before making any transactional decision.

2)

Transparency of Fees Regulations: We do not receive any referral fees/commissions from any of the Providers we recommend, apart from Cornerstone Finance, where we may receive a referral fee (amount dependent on the loan advance and product) from this Provider for recommending a borrower to them. This has no detrimental effect on the terms on any mortgage offered.

Tenure

Leasehold, new Lease to be set up (Vendors Solicitor to confirm)

Term

999 years

Ground Rent

Peppercorn

Current Maintenance Charge

N/A ad-hoc

Ref

TF/CYS250194

Council Tax Band

C (2025)

Viewing strictly by prior appointment.

All statements contained in the particulars are not to be relied on as representations of fact. All representations contained in the particulars are based on details supplied by the Vendor.


Floorplan

NOTE: These particulars are intended only as a guide to prospective Buyers/Tenants to enable them to decide whether to make further enquiries with a view to taking up negotiations but they are otherwise not intended to be relied upon in any way for any purpose whatsoever and accordingly neither their accuracy nor the continued availability of the property is in any way guaranteed and they are furnished on the express understanding that neither the Agents nor the Vendors are to be or become under any liability or claim in respect of their contents. Any prospective Tenant must satisfy himself by inspection or otherwise as to the correctness of the particulars contained.

Book a Viewing

If you are interested in viewing the property above, please complete the following form:




    Buying or Renting?


    Do we have permission to contact you with marketing emails?

    This form collects your name, email and content so that we can keep track of the comments placed on the website. For more info check our privacy policy where you'll get more info on where, how and why we store your data.