Brython Drive, St. Mellons, Cardiff

£195,000

Sold STC
Beds

2

bedrooms

Bathrooms

1

bathroom

Receptions

1

reception

A bright, modern extended semi-detached property, positioned at the head of a wide cul-de-sac, having a deep 2/3 car driveway, just a short drive to major supermarkets, having easy access to the A48 and M4.

Entrance hall, bright lounge, extended kitchen/diner, 2 bedrooms, modern bathroom. Upvc Double Glazing, gas central heating. Deep front garden and long driveway, large rear patio garden. Ideal for first time buyer. No chain.

EPC Rating: C

Entrance Hall

Approached by a uPVC door with double glazed insert to upper part, leading onto an inner hall, tiled flooring, deep built-in cloaks cupboard with lighting.

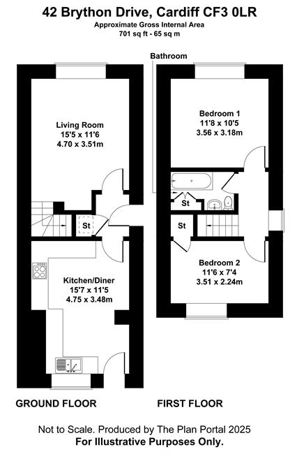
Lounge 15'5" (4.7m) x 11'6" (3.51m)

Overlooking the entrance approach and the head of the cul-de-sac, a good size reception, double panelled radiator, marble fireplace and hearth with ornate Adam style surround, gas point. Staircase to first floor level.

Kitchen/Diner 15'7" (4.75m) x 11'5" (3.48m)

Of good proportions, appointed along three sides beneath round nosed work surfaces, inset four ring gas hob with oven below, circulating fan above, matching range of base and eye level wall cupboards with pelmets and borders, inset 1.5 bowl sink and drainer with mixer tap, plumbed for washing machine, space for fridge and freezer beneath counter, tiled flooring, double glazed door leading to the rear garden with bright aspect.

First Floor Landing

Approached by an easy rising full turning staircase with hand rail to side, leading onto a central landing area with double glazed window, access to loft.

Bedroom 1 11'8" (3.56m) x 10'5" (3.18m)

Overlooking the entrance approach, panelled radiator.

Bedroom 2 11'6" (3.51m) x 7'4" (2.24m)

Aspect to rear, panelled radiator, built-in cupboard housing Worcester gas central heating boiler.

Bathroom

Modern white suite comprising low level WC, pedestal wash hand basin, panelled bath with shower attachment, built-in cupboard with shelving, ceramic wall tiling to wet areas with border tile, chrome heated towel rail.

Front Garden

Deep front garden with long driveway for 2/3 vehicles, areas of lawn and hedgerow borders, gate to side.

Rear Garden

Laid to lawn with patio area to side, enclosed by timber lap fencing. Large timber garden shed in need of some attention as water is entering from the roof.

Directions

Travelling east along the A48 Newport Road through Rumney and Old St Mellons, at the roundabout near Cardiff Garden Centre (formerly Blooms Garden Centre) and take the third right exit into Cypress Drive, followed by the next right into Willowdene Way. Hereon, continue to the T-junction and bear left into Willowbrook Way and take the next left into Brython Drive, whereby the property will be found towards the far end of the cul-de-sac, tucked away.

Viewers Material Information:

1)

Prospective viewers should view the Cardiff Adopted Local Development Plan 2006-2026 (LDP) and employ their own Professionals to make enquiries with Cardiff County Council Planning Department (www.cardiff.gov.uk) before making any transactional decision.

2)

Transparency of Fees Regulations: We do not receive any referral fees/commissions from any of the Providers we recommend, apart from The Mortgage Advice Bureau, where we may receive a referral fee (amount dependent on the loan advance and product) from this Provider for recommending a borrower to them. This has no detrimental effect on the terms on any mortgage offered.

General Information:

Tenure: Freehold (Vendors Solicitor to confirm) Ref: TF/CYS250092 Council Tax Band: C (2025) Viewing strictly by prior appointment. All statements contained in the particulars are not to be relied on as representations of fact. All representations contained in the particulars are based on details supplied by the Vendor.


Floorplan

NOTE: These particulars are intended only as a guide to prospective Buyers/Tenants to enable them to decide whether to make further enquiries with a view to taking up negotiations but they are otherwise not intended to be relied upon in any way for any purpose whatsoever and accordingly neither their accuracy nor the continued availability of the property is in any way guaranteed and they are furnished on the express understanding that neither the Agents nor the Vendors are to be or become under any liability or claim in respect of their contents. Any prospective Tenant must satisfy himself by inspection or otherwise as to the correctness of the particulars contained.

Book a Viewing

If you are interested in viewing the property above, please complete the following form:




    Buying or Renting?


    Do we have permission to contact you with marketing emails?

    This form collects your name, email and content so that we can keep track of the comments placed on the website. For more info check our privacy policy where you'll get more info on where, how and why we store your data.